SEPARADORES DE SEMILLAS
Separación por Ancho y espesor


Zaranda y viento

Zaranda y Viento


Vista interior

Cilindros Ranurados

Tamañado en Trigo
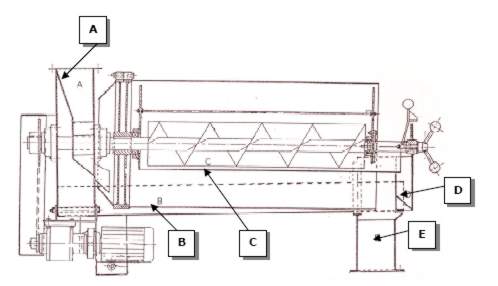
Separación por Largo

Cilindros

Cilindros alveolados


Palanca para Inclinación de cilindro
Esquema de Procesamiento

Detalle interior de los cilindros y esquema
Separación por peso o densidad


Mesa vibradora

Otros modelos de Mesa vibradora
Mesa vibradora

Mesa vibradora

Esquema de mesa vibradora


Separadora neumática y esquema de procesamiento

Separadora neumática para pequeños volúmenes
Separación por Forma

Separadoras en Espiral
Separación por Color
